Тумба с выдвижными ящиками: подробная инструкция и советы
Изготовление тумбы с выдвижными ящиками может быть интересным и полезным проектом для домашнего интеллекта. В этой статье мы представим вам чертежи и руководство по созданию тумбы с выдвижными ящиками, а также поделимся полезными советами для успешной реализации проекта.


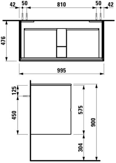
Перед началом работы, тщательно изучите чертежи и планы тумбы. Убедитесь, что у вас есть все необходимые инструменты и материалы.

ОЧЕНЬ ПРОСТОЙ СПОСОБ! СОБИРАЮ ВЫДВИЖНОЙ ЯЩИК, ШУФЛЯДКУ! ВСЕ ТОНКОСТИ И НЮАНСЫ!

При выборе материалов для тумбы, предпочтение отдавайте твердым, долговечным породам дерева, таким как дуб или ясень. Это обеспечит надежность и долгий срок эксплуатации изделия.

pro100, тумба с верхним выдвижным ящиком
Для достижения гладкой поверхности ящиков тумбы перед покраской или покрытием лаком, рекомендуется использовать шлифовальную бумагу с разными размерами зерен. Это поможет убрать неровности и получить идеально гладкую поверхность.

Как рассчитать тумбочку на два ящика с доводчиками

Обратите внимание на высоту и глубину ящиков в тумбе. Они должны быть удобными для хранения вещей, которые вы планируете разместить в них.

Тумба / комод под ТВ своими руками за 70$ (+ чертёж)
При склеивании деталей тумбы используйте специальный деревянный клей. Он обладает хорошей прочностью и не оставляет видимых следов.

Как сделать расчет (спецификацию, деталировку) тумбы с выдвижными ящиками

Не забывайте про безопасность при работе со столярными инструментами. Используйте защитные очки, перчатки и другие индивидуальные средства защиты.
Перед окончательной сборкой тумбы, проверьте все соединения и габариты, чтобы убедиться, что все детали идеально сочетаются и совпадают.

Выдвижные ящики! Пользуюсь теперь только этим способом!!! Мебель своими руками!

При установке выдвижных ящиков, используйте качественные направляющие, чтобы они легко выдвигались и не были скрипучими.
Процесс изготовления тумбы с выдвижными ящиками может занять некоторое время, не спешите и тщательно следуйте руководству. Так вы получите отличный результат.


После завершения работ, не забудьте пропитать тумбу специальными средствами для дерева, чтобы она стала более устойчивой к влаге и механическим повреждениям.


Столы с ящиками (+ чертежи) - Обустройство новой столярной мастерской